




































Eugeny Reshetov
Tatiana Sinelnikova
Karina Molchanova
Ulyana Raspopova
Olga Soro
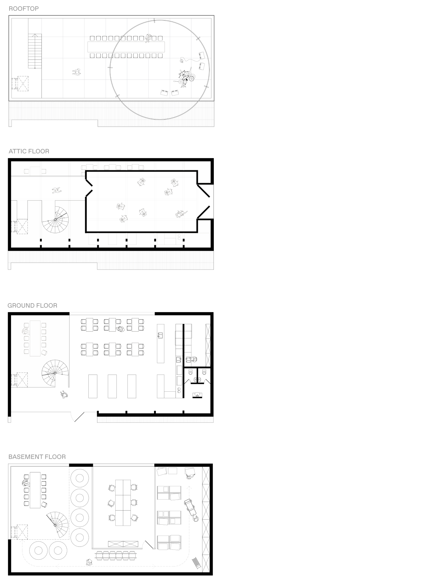
The Object
Drawing from a multi-faceted and rich context, we aimed to create a new dimension and impression for the visitors of Podere Fedespina, ensuring not only the required minimum of functional zones but also adding some extra without breaching the brief's limitations. As a result, the starting point for creating the structure was the idea of rooftop soaring above the surrounding area, offering 360 degree views of both the landscapes, the vineyards and buildings of Podere Fedespina.
An expressive viewpoint and an open-air event platform, the rooftop is supported by a wooden structure that forms the body of the building — a barn-like void filled with the building's current internal program (hall, restaurant, tasting etc.) but which can be adapted for different uses in the future. Similar to the old buildings of Podere Fedespina, which were unlikely to have been originally intended to become a hotel for wine enthusiasts.
Cultural winery
Reflecting on the competition's theme, we considered the concept of culture, whose defining quality for us is depth — the simultaneous presence and perception of different tempos and levels. From the eternal landscapes of Tuscany, through the ancient walls of the Podere and the millennia-old culture of winemaking, to the fleeting and ephemeral theatrical, dance, and musical performances, conversations and gastronomic experiences that exist only at a specific moment in time.
Each of these tempos has its embodiment in the material palette we chose for the building. From the reinforced concrete basement of the building housing the permanent functionality of the winery, through the CLT and glulam frame envelope dedicated to long-term but sustainably interchangeable functions of an event venue and restaurant, to the open rooftop crowned by a lightweight steel ring, which serves as a framework for transformations of the building's image through the addition of temporary light elements made of textile, PVC, paper, upcycled objects, etc.
In its exposed and devoid of decoration form, this ring is a symbol. A promise of celebration and an anticipation of festivity.
Inner structure
The interior of the building is described as a transparent space where visitors can simultaneously observe all the functional zones, as if viewing an architectural section. The minimalist exterior embodies a high-tech logic that blurs the distinction between primary and auxiliary processes, creating a space defined by their connection and interaction. Structural elements, along with service and technical infrastructure, are exposed, forming the materiality of the interior.
Loading and unloading, as well as preparations for performances and concerts, are facilitated by a lift platform that connects all levels of the building and is located next to the main spiral staircase. In the logic of reasonable sufficiency, this platform is also adapted to meet the needs of people with special needs.